Conference and Event Services
Digital Living Room

Room Details
- 82-inch display screen
- USB webcam
- Clickshare unit
- Wireless control panel
- Comfortable, movable seating for 14
- Video conferencing capabilities
- AV startup instructions
Space Capacity Chart
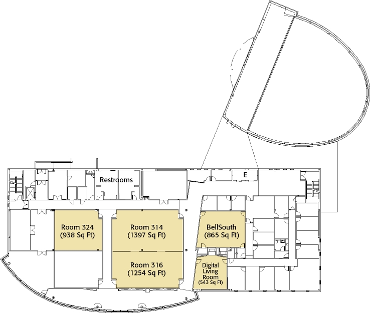
3rd Floor
| Room | Square Feet | Theater | Classroom | Conference | Banquet | Reception |
| Video Conference Center (Room 313) | 865 | n/a | n/a | 25 | 25 | n/a |
| Digital Living Room - (Room 315) | 543 | 15 | 15 | n/a | n/a | n/a |
| Collaboration Space | Contact Conference and Event Services for more information. | |||||
Floor Layout
