Conference and Event Services
Facilities
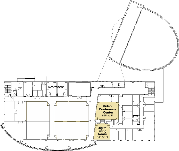
Video Conference Center
- Room 313
- Conference style seating for 20-25
- Theater: N/A
- Classroom: N/A
- Conference: 20-25
- U-Shape: 20
- Banquet Rounds: N/A
- Reception: N/A
- 82-inch display screen
- Built-in PC
- USB webcam
- Clickshare unit
- Wireless control panel
- Web based video conferencing capability such as Teams and Zoom
- HDMI cable
- Whiteboard

